Дома под ключ в Сергиевом Посаде
Отзывы из Яндекс Карт
4.9
121 отзывов
Дополнительные услуги 88%
2 154 оценок
Комплектации 89%
1 535 оценок
Планировки 90%
2 484 оценок
Проекты 93%
2 231 оценок
С
Габриэлла01.05.2026 г.
Замечательно, что дали гарантию пять лет на все работы. У нас дом 7х9 с верандой, через год одна доска на веранде треснула — заменили без вопросов. А вот с окнами вышла заминка: приехали на две недели позже остального материала.
С
Аристарх Ю.06.04.2026 г.
Взял готовый проект бани 5,5х8,5 с террасой и навесом. Переделали под мою печь-каменку, согласовали быстро. Сгорело уже два года, все отлично.
С
Мира Мешкова25.02.2026 г.
Строили дом 9х12 с котельной и гаражом под одной крышей. Самое неприятное — после первого дождя обнаружила, что водосток установлен криво, вода льёт на отмостку. Приехали, переделали, но осадочек остался.
С
Катерина Суворова06.06.2025 г.
Долго искали компанию, которая построит дом по индивидуальному эскизу, и нашли – это «Брус дома»! Архитектор внимательно выслушал все наши, порой сумбурные, идеи и создал потрясающий проект, который учел все нюансы участка и наши желания. Строители воплотили его в жизнь с удивительной точностью.
Отзывы из Google Карт
4.8
73 отзывов
Дополнительные услуги 88%
2 154 оценок
Комплектации 89%
1 535 оценок
Планировки 90%
2 484 оценок
Проекты 93%
2 231 оценок
С
Арсения Руднева18.03.2026 г.
Даже не ожидала, что дом 5,5х8,5 с эркером и печкой будет таким светлым — я думала в деревянном всегда сумрачно. БрусДома молодцы, окна поставили большие, потолки высокие. Только розетки в спальне не там смонтировали, сместили на полметра.
С
Гера Т.01.03.2025 г.
Искал компанию с большим опытом именно в деревянном строительстве и нашел! Видно, что люди знают и любят дерево — все детали продуманы, учтены особенности материала. Дом из бруса дышит, в нем удивительный микроклимат. Спасибо за мастерство и ответственность.
Отзывы из 2гис
4.9
33 отзывов
Дополнительные услуги 88%
2 154 оценок
Комплектации 89%
1 535 оценок
Планировки 90%
2 484 оценок
Проекты 93%
2 231 оценок
С
Аида Олейникова24.01.2026 г.
Пришла к ним с готовым проектом дома 150м2 с сауной и бассейном. Посчитали адекватно, но в процессе выяснилось, что не заложили гидроизоляцию под бассейн. Докупили сами, строители бесплатно уложили.
С
Дмитрий16.04.2025 г.
Подводя итог, хочу сказать, что мои ожидания были не просто оправданы, а превзойдены по всем параметрам, начиная от скорости коммуникаций и заканчивая филигранной точностью исполнения, поэтому компании Брус дома — мой осознанный выбор и надёжный партнёр на долгие годы.


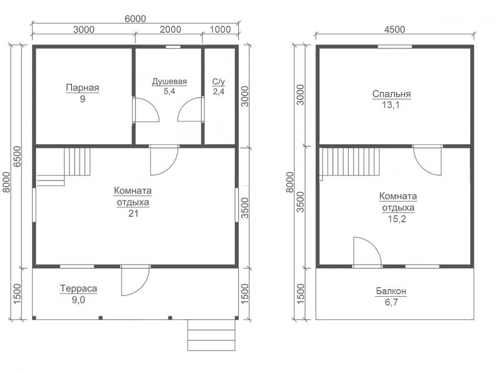
Проект №16 Каркасная баня 6х8 2

каркас из строганой доски
Создайте свой план для этого проекта
и отправьте его нам на расчет в один клик.
Каркасный дом (150 мм) 6х8 Толщина утепления 150 мм 2080500 Заказать
Каркасный дом (200 мм) 6х8 Толщина утепления 200 мм 2260500 Заказать

Чтобы получить личную планировку, пользуйтесь нашим планировщиком.

При помощи планировщика вы имеете возможность создать подходящие планы, эскизы, чертежи, схемы уникальной бани с мансардой, эркером, с несколькими спальнями. В результате получится свой проект с планировкой, который на 100% отвечает вашим условиям.

Вы можете выбрать подходящий тип крыши: двускатная, четырехскатная и вальмовая. Двухскатную крышу считают самой востребованной в малометражных банях.

Самые популярные сегодня размеры бани и бань: мини - до 36 м2 (в основном, 1 этажные); компактные - от 36 до 70 м2 (обычно двухэтажные); большие - от 70м2 и больше.


Наши работы

Перейти в галерею


Комплектация

Площадь застройки: 48 м2
Длина: 6 м
Ширина: 8 м
Общая площадь: 75 м2
Исполнение Под ключ (с отделкой)
Фундамент Свайно-винтовой или ж/б сваи (рассчитываются отдельно).
Гидроизоляция фундамента Рубероид в два слоя.
Основание (обвязка) Из обрезного бруса 150х150 мм. 150х200 мм. согласно выбранной толщине утепления. Торцевая строганая доска камерной сушки 45х145/45х195+/-5 мм. Обработка антисептиком.
Цокольное перекрытие Строганая доска камерной сушки 45х145/45х195+/-5 мм. с шагом 590 мм. Обработка антисептиком.
Пол черновой Обрезная доска камерной сушки 20х100 мм.
Влаго-ветрозащита чернового пола Мембрана Ондутис А100.
Внешние стены Стойки каркаса из строганой доски камерной сушки 45х145/45х195+/-5 мм. с шагом 590 мм. Верхняя двойная и нижняя обвязки из строганой доски камерной сушки 45х145/45х195+/-5 мм. Разгрузочный ригель из строганой доски 45х145+/-5 мм. Укосины из строганой доски 20х95 мм.
Перегородки Стойки каркаса из строганой доски камерной сушки 45х95+/-5 мм. с шагом 590 мм. Верхняя двойная и нижняя обвязки из строганой доски 45х95+/-5 мм. Разгрузочный ригель из строганой доски камерной сушки 45х145+/-5 мм. Укосины из строганой доски камерной сушки 20х95 мм.
Сборка каркаса На гвозди.
Высота от пола до потолка Баня одноэтажная: 2,5 м. Баня с мансардой: 1-ый этаж- 2,5 м.
2-ой этаж (мансарда)- 2,3 м.
Баня в полтора и два этажа:
1-ый этаж 2,5 м.
2-ой этаж 2,4 м. в полутораэтажной бане.
2,5 м. в двухэтажной бане.
Внешняя отделка стен Имитация бруса камерной сушки, сорт АВ, толщиной 17 мм. Монтаж через строганый брусок камерной сушки 45х45+/-5 мм. (вентилируемый фасад). Влаго-ветрозащитная мембрана- Ондутис А100.
Внутренняя отделка стен, перегородок Евровагонка камерной сушки, сорт АВ, толщиной 12,5 мм. по строганой рейке 20х40+/-5 мм. либо ГКЛ 12,5 мм.
Отделка потолка Евровагонка камерной сушки, сорт АВ, толщиной 12,5 мм. по строганой рейке 20х40+/-5 мм. либо ГКЛ 12,5 мм.
Пол чистовой Шпунтованная доска камерной сушки толщиной 35-36 мм. сорт АВ. по строганой рейке 20х40+/-5 мм. либо шпунтованная ДСП 16 мм. по разряженной обрешётке из строганой доски камерной сушки 20х95+/-5 мм.
Утепление (пол, потолок) Минеральная вата Knauf 150/200 мм. согласно выбранной толщине утепления.
Утепление стен Плитный утеплитель Rockwool, толщиной 150/200 мм. согласно выбранной толщине утепления.
Звукоизоляция перегородок Плитный утеплитель Rockwool, толщиной 100 мм.
Пароизоляция (стены, перегородки, пол, потолок) Плёнка Ондутис R70. Дополнительная герметизация нахлёстов/примыканий пароизоляционной плёнки клейкой лентой Delta.
Отделка парной Отделка осиновой вагонкой камерной сушки, сорт АВ по фольге, через строганую рейку 20х40+/-5 мм. (вентиляционный зазор). Установка пологов из осины.
Окна Двухкамерные стеклопакеты ПВХ белого цвета, профиль 60 мм. В комплекте: отливы, подоконники, москитные сетки.
Двери Входная- металлическая, утеплённая (Россия). Межкомнатные- филёнчатые. В душевую/парную- клиновые (банные).
Наличники на окна и двери Наличник деревянный, строганый, камерной сушки 70-90 мм. с двух сторон.
Лестница (при наличии второго этажа) Деревянная, одно или двухмаршевая. Перила- заводские резные, балясины- заводские точеные, устанавливаются стартовые точёные столбы. Ступени 40х200 мм. Тетива лестницы- 90х140 мм.
Крыша Двускатная, ломаная или вальмовая в соответствии с проектом.
Стропильная система Выполнена из строганой доски камерной сушки 45х145/45х195+/-5 мм. Шаг установки стропил 590 мм.
Обрешётка Выполняется из строганой доски камерной сушки толщиной 20х95+/-5 мм. Шаг крепления обрешетки 350 мм. Контробрешётка выполняется из строганого бруска камерной сушки 45х45+/-5 мм. Крепится по стропилам (вентиляционный зазор).
Подкровельная мембрана Ондутис А100
Кровельное покрытие (на выбор) Металлочерепица 0,45 мм. Цвет на выбор.
Фронтоны (при наличии) Каркас из строганой доски камерной сушки 45х145/45х195+/-5 мм. Обшиваются имитацией бруса камерной сушки, сорт АВ, толщиной 17 мм. Монтаж через строганый брусок камерной сушки 45х45+/-5 мм. (вентилируемый фасад). Влаго-ветрозащитная мембрана- Ондутис А100. Монтаж вентиляционных решёток.
Свесы крыши Ширина 400 мм. Подшиваются вагонкой камерной сушки, сорт АВ.
Терраса/балкон (при наличии) Устанавливаются опорные столбы из строганного бруса камерной сушки 140х140 мм.
Отделка потолка террасы/балкона Евровагонка камерной сушки толщиной 12,5 мм. сорт АВ.
Пол террасы/балкона Шпунтованная доска камерной сушки толщиной 35-36 мм. сорт АВ.
Ограждение террасы/балкона Перила- строганая доска. Балясины- точеные, фигурные. Либо ограждение в скандинавском стиле. Устанавливаются ступени у входа.
Допуск на геометрические параметры Составляет +/- 50 мм по длине с каждой стороны.
Допускается стыковка имитации бруса, вагонки и половой доски По всему периметру стен бани (если ширина и длина бани более 6,0 метров). Вагонки и доски пола в каждой отдельной комнате.
Допуски по имитации бруса, вагонке, доске +/- 5 мм.
В стоимость включена Доставка комплекта материала в радиусе 500 км. от г. Пестова Новгородской области и сборка дома на вашем участке.
Гарантия 5 лет.
Печь По запросу.
Бытовка строительная 2,0х3,0 м. каркасно-щитовая. Стоимость 23000 руб. Остаётся на участке Заказчика.
Туалет 1,0х1,0 м. каркасно-щитовой. Стоимость 12000 руб. Остаётся на участке Заказчика.
Генератор Стоимость аренды на весь срок строительства 15000 руб. ГСМ за счёт Заказчика.

Строительство каркасной бани может выполняться в нескольких видах: под усадку, когда сруб отстаивается определенное время и сразу под ключ.

Зимой эксперты рекомендуют строить баню в мороз, чтобы каркас не отсырел, летом - не в дождливую.

Наиболее подходящими для сада или дачи являются экономные бани на винтовых сваях, на нашем сайте вы увидите одноэтажные и полуторатажные виды бань.

Имеется 2 размера утепления: 200 мм и 150 мм. Каркасные бани с утеплителем двести миллиметров получаются теплее, но несколько дороже.

Дополнительные услуги



Популярные проекты


Дома из бруса 7х9 Каркасные дома Бани из бруса 6х4
Дома из бруса

Заказать или задать вопрос



Заказать или задать вопрос

Заказать звонок