Дома под ключ в Сергиевом Посаде
Отзывы из Яндекс Карт
4.9
98 отзывов
Дополнительные услуги 88%
2 154 оценок
Комплектации 89%
1 535 оценок
Планировки 90%
2 484 оценок
Проекты 93%
2 231 оценок
С
Фрида Кондрашова19.05.2026 г.
Очень понравилось, что проект адаптировали под наш участок, учли уклон и расположение деревьев. Дом стоит как влитой, не пришлось ничего вырубать.
С
Артур Пастухов24.07.2025 г.
Выбирал из нескольких компаний и остановился на Брусе дома, и вот почему — здесь сразу же ощущается серьезный подход, дали развернутую консультацию, показали готовые объекты, а в итоге и мой дом построили на совесть.
Отзывы из Google Карт
4.8
59 отзывов
Дополнительные услуги 88%
2 154 оценок
Комплектации 89%
1 535 оценок
Планировки 90%
2 484 оценок
Проекты 93%
2 231 оценок
С
Валя Агеев04.04.2026 г.
Материалы привозили паллетами, всё промаркировано, чеки на месте. Контролировал каждый этап, прораб не рыпался. Дом 9,5х11 с цоколем и панорамным остеклением — вид из окна космос. Заплатил как по договору, лишнего не взяли.
С
Лада Винокурова24.02.2026 г.
Уф, наконец-то пишу отзыв. Заказывала баню с сауной и бассейном 6,5х6,5 — звучит как фантастика, но ребята из «БрусДома» воплотили. Правда, в процессе выяснилось, что бассейн нужно было глубже копать, пришлось доплачивать — неприятный сюрприз.
С
Доля20.05.2025 г.
Я в полном восторге от внешнего вида нашего брусового дома. Текстура дерева так красиво играет на солнце, а аккуратные углы и ровные стены радуют глаз. Соседи спрашивают, кто строил, всегда с гордостью рекомендую вашу компанию.
Отзывы из 2гис
4.9
33 отзывов
Дополнительные услуги 88%
2 154 оценок
Комплектации 89%
1 535 оценок
Планировки 90%
2 484 оценок
Проекты 93%
2 231 оценок
С
Алан Порошин04.03.2026 г.
Сначала думал что обманут, потому что предоплату просили 70 процентов. Но рискнул — дом 5х8 с крыльцом и санузлом поставили качественно. Через год усадка была минимальная, щели нигде не пошли. Сейчас рекомендую знакомым, хоть и дороговато вышло.
С
Бронислава Горбачёва28.01.2026 г.
Муж сначала ругался что я выбрала не тех, но когда увидел как быстро собрали коробку дома 10х14 с двумя гаражами и котельной, сразу заткнулся, правда кровлю пришлось перестилать из-за протечки в одном месте.
С
Арина17.01.2025 г.
Огромная благодарность всей команде за профессионализм и душевное отношение к клиенту — наш деревянный дом стал настоящим родовым гнездом, теплым и уютным.


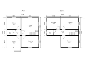
Проект №63 Дом 8х7,5

каркас из строганой доски
Создайте свой план для этого проекта
и отправьте его нам на расчет в один клик.
Каркасный дом (150 мм) 7,5х8 Толщина утепления 150 мм 3080500 Заказать
Каркасный дом (200 мм) 7,5х8 Толщина утепления 200 мм 3310500 Заказать

Воспользуйтесь нашим планировщиком, чтобы получить свою индивидуальную планировку.

При помощи планировщика вы имеете возможность сделать подходящие чертежи, планы, схемы, эскизы уникального дома с мансардой, эркером, с одной, двумя или тремя спальнями. Вы сможете получить отличный проект, который отвечает вашим потребностям.

Вы сможете выбрать вид кровли: двускатная, четырехскатная и вальмовая. Двухскатную считают наиболее востребованной у малометражных построек.

Самые популярные размеры на сегодняшний день: мини - до 50 м2 (как правило, одноэтажные); компактные - от 70 до 100 квадратных метров (обычно 2х этажные); большие дома - от 150 квадратов и более.

Можем предложить дуплексы - каркасные постройки с 2-мя входами, рассчитанные на проживание сразу двух семей. Такие дома предполагаются для двух хозяев и делятся на две половины, каждая половина с отдельным входом.


Наши работы

Перейти в галерею


Комплектация

Площадь застройки: 60 м2
Длина: 8 м
Ширина: 7.5 м
Общая площадь: 97 м2
Исполнение Под ключ (с отделкой)
Фундамент Свайно-винтовой или ж/б сваи (рассчитываются отдельно).
Гидроизоляция фундамента Рубероид в два слоя.
Основание (обвязка) Из обрезного бруса 150х150 мм. 150х200 мм. согласно выбранной толщине утепления. Торцевая доска строганая 45х145/45х195+/-5 мм. согласно выбранной толщине утепления. Обработка антисептиком.
Цокольное перекрытие Строганая доска камерной сушки 45х145/45х195+/-5 мм. с шагом 590 мм. Обработка антисептиком.
Пол черновой Обрезная доска камерной сушки 20х100 мм.
Влаго-ветрозащита чернового пола Мембрана Ондутис А100.
Внешние стены Стойки каркаса из строганой доски камерной сушки 45х145/45х195+/-5 мм. с шагом 590 мм. Верхняя двойная и нижняя обвязки из строганой доски камерной сушки 45х145/45х195+/-5 мм. Разгрузочный ригель из строганой доски 45х145+/-5 мм. Укосины из строганой доски 20х95 мм.
Перегородки Стойки каркаса из строганой доски камерной сушки 45х95+/-5 мм. с шагом 590 мм. Верхняя двойная и нижняя обвязки из строганой доски 45х95+/-5 мм. Разгрузочный ригель из строганой доски камерной сушки 45х145+/-5 мм. Укосины из строганой доски камерной сушки 20х95 мм.
Сборка каркаса На гвозди.
Высота от пола до потолка Дом одноэтажный: 2,5 м. Дом с мансардой: 1-ый этаж- 2,5 м.
2-ой этаж (мансарда)- 2,3 м.
Дом в полтора и два этажа:
1-ый этаж 2,5 м.
2-ой этаж 2,4 м. в полутораэтажном доме
2,5 м. в двухэтажном доме.
Внешняя отделка стен Имитация бруса камерной сушки, сорт АВ, толщиной 17 мм. Монтаж через строганый брусок камерной сушки 45х45+/-5 мм. (вентилируемый фасад). Влаго-ветрозащитная мембрана- Ондутис А100.
Внутренняя отделка стен, перегородок Евровагонка камерной сушки, сорт АВ, толщиной 12,5 мм. по строганой рейке 20х40+/-5 мм. либо ГКЛ 12,5 мм.
Отделка потолка Евровагонка камерной сушки, сорт АВ толщиной, 12,5 мм. по строганой рейке 20х40+/-5 мм. либо ГКЛ 12,5 мм.
Пол чистовой Шпунтованная доска камерной сушки толщиной 35-36 мм. сорт АВ. по строганой рейке 20х40+/-5 мм. либо шпунтованная ДСП 16 мм. по разряженной обрешётке из строганой доски камерной сушки 20х95+/-5 мм.
Утепление (пол, потолок) Минеральная вата Knauf 150/200 мм. согласно выбранной толщине утепления.
Утепление стен Плитный утеплитель Rockwool, толщиной 150/200 мм. согласно выбранной толщине утепления.
Звукоизоляция перегородок Плитный утеплитель Rockwool, толщиной 100 мм.
Пароизоляция (стены, перегородки, пол, потолок) Плёнка Ондутис R70. Дополнительная герметизация нахлёстов/примыканий пароизоляционной плёнки клейкой лентой Delta.
Окна Двухкамерные стеклопакеты ПВХ белого цвета, профиль 60 мм. В комплекте: отливы, подоконники, москитные сетки.
Двери Входная- металлическая, утеплённая (Россия). Межкомнатные- филёнчатые.
Наличники на окна и двери Наличник деревянный, строганый, камерной сушки 70-90 мм. с двух сторон.
Лестница (при наличии второго этажа) Деревянная, одно или двухмаршевая. Перила- заводские резные, балясины- заводские точеные, устанавливаются стартовые точёные столбы. Ступени 40х200 мм. Тетива лестницы- 90х140 мм.
Крыша Двускатная, ломаная или вальмовая в соответствии с проектом.
Стропильная система Выполнена из строганой доски камерной сушки 45х145/45х195+/-5 мм. Шаг установки стропил 590 мм.
Обрешётка Выполняется из строганой доски камерной сушки толщиной 20х95+/-5 мм. Шаг крепления обрешетки 350 мм. Контробрешётка выполняется из строганого бруска камерной сушки 45х45+/-5 мм. Крепится по стропилам (вентиляционный зазор).
Подкровельная мембрана Ондутис А100
Кровельное покрытие (на выбор) Металлочерепица 0,45 мм. Цвет на выбор.
Фронтоны (при наличии) Каркас из строганой доски камерной сушки 45х145/45х195+/-5 мм. Обшиваются имитацией бруса камерной сушки, сорт АВ, толщиной 17 мм. Монтаж через строганый брусок камерной сушки 45х45+/-5 мм. (вентилируемый фасад). Влаго-ветрозащитная мембрана- Ондутис А100. Монтаж вентиляционных решёток.
Свесы крыши Ширина 400 мм. Подшиваются вагонкой камерной сушки, сорт АВ.
Терраса/балкон (при наличии) Устанавливаются опорные столбы из строганного бруса камерной сушки 140х140 мм.
Отделка потолка террасы/балкона Евровагонка камерной сушки толщиной 12,5 мм. сорт АВ.
Пол террасы/балкона Шпунтованная доска камерной сушки толщиной 35-36 мм. сорт АВ.
Ограждение террасы/балкона Перила- строганая доска. Балясины- точеные, фигурные. Либо ограждение в скандинавском стиле. Устанавливаются ступени у входа.
Допуск на геометрические параметры Составляет +/- 50 мм по длине с каждой стороны.
Допускается стыковка имитации бруса, вагонки и половой доски По всему периметру стен дома (если ширина и длина дома более 6,0 метров). Вагонки и доски пола в каждой отдельной комнате.
Допуски по имитации бруса, вагонке, доске +/- 5 мм.
В стоимость включена Доставка комплекта материала в радиусе 500 км. от г. Пестова Новгородской области и сборка дома на вашем участке.
Гарантия 5 лет.
Бытовка строительная 2,0х3,0 м. каркасно-щитовая. Стоимость 23000 руб. Остаётся на участке Заказчика.
Туалет 1,0х1,0 м. каркасно-щитовой. Стоимость 12000 руб. Остаётся на участке Заказчика.
Генератор Стоимость аренды на весь срок строительства 15000 руб. ГСМ за счёт Заказчика.

Сооружение дома выполняется в нескольких видах: под ключ и под усадку, когда сруб будет отстаиваться на протяжении некоторого времени.

В период холодов рекомендуется строить дом в мороз, чтобы каркас не успел промокнуть, в летний сезон - не под дождем.

Оптимальными для дачи или сада являются дома на винтовых сваях, в нашем каталоге присутствуют одноэтажные и полуторатажные дома.

В случае если вы собираетесь жить постоянно, рекомендуем теплые дома на ленточном и плитном фундаменте.

Мы можем предложить 2 размера утепления: 200 мм и 150 мм. Каркасные дома с толщиной утеплителя 200 миллиметров получаются теплее, но несколько дороже.

Дополнительные услуги


Дом с каркасной структурой , согласно плану 63 двухэтажный с утепленной двускатной разновидностью крыши, обращает на себя повышенное внимание экологической безопасностью, благодаря использованию ориентированно-стружечных плит, теплоизоляционной ваты, а это предоставляет первоклассную защиту от морозов, идеальный микроклимат в жилище. Размеры этого уютного гнездышка составляют 7,5х8 м., общая жилплощадь - 97 кв.м.. Наша фирма в кратчайшие сроки построит дом из каркаса по персональному или типовому плану в Сергиевом Посаде в любое время года и на любом варианте грунта.

Популярные проекты


Дома из бруса Каркасные дома 4х10 Каркасные дома 9х10
хит продаж
Тип: с террасой
Общая площадь: 2
1901000
от 1810500
хит продаж
Тип:
Общая площадь: 2
2552000
от 2430500
хит продаж
Тип:
Общая площадь: 2
2720000
от 2590500
Дома из бруса

Заказать или задать вопрос



Заказать или задать вопрос

Заказать звонок